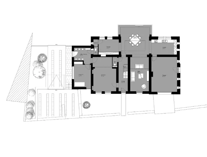
Objectifs
- Rénovation d'un bâti ancien et vétuste
- Améliorer la luminosité et la sensation d'espace
- Différencier la sphère privée et l'espace professionnel
- Intégrer les ajouts ultérieurs par contraste
Programme
- Maison d'habitation
- Espace professionnel attenant (profession libérale médicale)
" Un cachet à conserver, sublimer, moderniser "






