Se rendre au contenu

Objectifs

  • Remplacer une ancienne salle des fêtes vétuste par une nouvelle Maison de Village en phase avec les enjeux de son temps
  • Garder l'implantation actuelle pour conserver la mise en valeur de l'ancienne cure du village à l'arrière
  • Allier ancrage villageois, projet à dimension humaine et ambition architecturale avec une typologie plus contemporaine

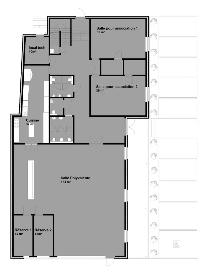
Programme

  • Grande salle polyvalente (174 m²) avec bar et cuisine (36m²)
  • Moyenne salle polyvalente (86m²)
  • 2 salles pour association (35 m²)
  • Espaces de circulation et espaces servants permettant le fonctionnement distinct de chaque salle
  • Accès avant depuis le parking et accès de service arrière supplémentaire
" Une alliance entre ruralité et modernité "
Esquisse d'avant projet
Plan rez de chaussée
Plan étage