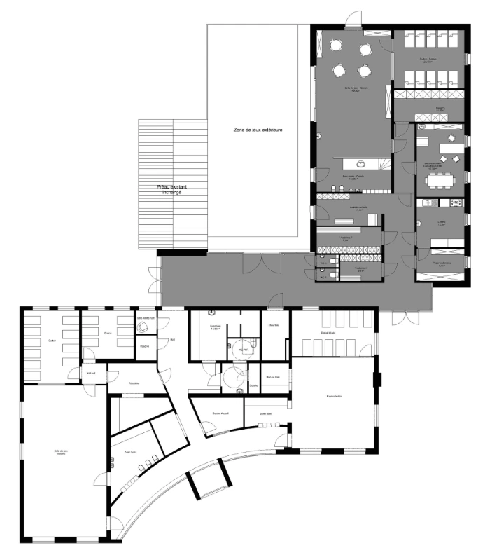
Programme
- Une nouvelle section autonome (63m², zone de soins comprise)
- Un dortoir attenant (20m²)
- Les espaces d'accueil des parents asservis à la section
- De nouveaux vestiaires et sanitaires pour le personnel
- Une nouvelle cuisine et sa réserve de denrées
- Un espace de bureau et consultation ONE
Objectifs
- Augmenter la capacité d'accueil de 10 places en créant une nouvelle section autonome
- Tout en ne perturbant pas le fonctionnement de la crèche existante, qui doit se poursuivre pendant le chantier
"Entre autonomie et synergie"
projet en cours de chantier




